|
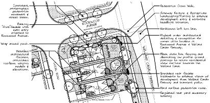
InSite Land Use Planning is pleased to be acting on behalf of Canada Lands Company in administration of developer driven Urban Design Guidelines which act to guide the built environment of this unique canal-side subdivision. Tight controls on building materials, colours and model separation are meant to ensure the Victoria Village subdivision provides visual diversity for one of the last greenfield developments within the city’s urban boundary. Plenty of recreational opportunities exist within close proximity and immediate access to the trail networks of the Welland Canals Parkway and Greater Niagara Circle Route broadens the appeal of this residential neighbourhood. |
|
Victoria Village - Urban Design Guidelines |








