|
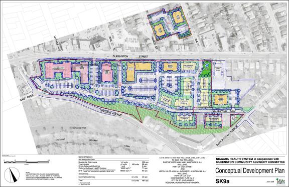
Leading up to the sale of the St. Catharines General Hospital (Niagara Health System), extensive community consultation was undertaken in effort to create a vision for the re-use of the site by future ownership by working towards an Official Plan and Zoning Amendments to reflect that vision. Chris was heavily involved in the consultations and provided conceptual development scenarios over the course of two years leading into a Council decision on the lands. Council did ultimately approve amendments and the property was marketed by NHS for divestment and the scope of work by Chris drew to a close. Chris had worked closely with the community and the city to ensure a balanced mix of density was planned and met with provincial, regional and local intensification targets. |
|
St. Catharines General Hospital Redevelopment |



|
St. Catharines General Hospital Community Wing |
|
St. Catharines General Hospital - Moore Wing |
|
© InSite Land Use Planning 2017 |